iFactory极白研发工坊于2018年10月26日正式对外发声,是中国第一家专注于白色文化的时尚创意工坊。作为国内外极致趣味生活方式的倡导者,iBranco在艺术和生活等领域不断探索创新,致力于打造全新白色印象。空间设计公司意图将办公场所展厅化,融入品牌形象的同时激发无穷的设计灵感,为崇尚极简、自由、创意的群体提供一个全新的办公空间,使其成为最具影响力的白色美学创意基地。
▽ 大门
▽ 办公区域
▽ 休闲区
▽ 发布区
▽ 总裁办公室
▽ 展厅
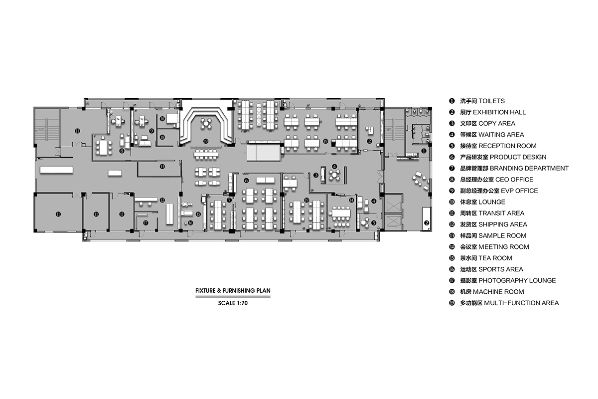
▽ 平面图
▽ 剖面图
从生活到设计,从外在形式到内在特质,白色不是一个无趣的代表,而是充满可能性和未来感的纯粹象征。无需纷繁色彩的渲染和复杂元素的推砌,多处白色艺术装置分布在1500平方米的展厅空间,iBranco让设计回归纯粹的本质,用爱白态度打造全站式的造白之旅。
完整项目信息
项目名称:iFACTORY
设计事务所:UDO装饰设计事务所
项目地址:广东省珠海市
建筑面积:1500㎡
主持设计师:周涛
参与设计师:郭文斌,李秋菊,Anson
视觉设计:Siufung、Moon
设计及完成时间:2017.12-2018.09
摄影:MAX
【本案转载于LOFT中国】
深圳总部
深圳市龙岗区力嘉路2013文化创客园A栋A3-22
南山分部
深圳市南山区粤海街道滨海大道阳光金融大厦20楼
服务热线
13421805628
+
联系邮箱
项目合作498064812@qq.com 人事招聘aitoo_hr@126.com
+
艾图官方公众微信号 Steven先生的微信号

艾图品牌整合设计机构 2008-2018 All Rights Reserved.
Links:深圳品牌全案策划公司 | 商标设计 | 长沙VI设计公司 | 办公空间设计 | 品牌策划公司
酒店设计公司 | 深圳包装设计公司 | 品牌设计公司 | 店铺设计 | 重庆VI设计公司 | 三维动画制作 | VI设计公司