淮安地处江苏省长江以北的核心地区,邻江近海,为南下北上的交通要道,区位优势独特,是江苏省的重要交通枢纽,也是长江三角洲北部地区的区域交通枢纽,历来有“中国运城之都”的美誉。
本案设计中采用水作为整个空间的设计主线,空间设计公司希望通过现代的设计手法,融入水的梦幻、灵动和深邃,打造一个轻奢的餐饮休闲空间。空间中通过光影的变化,在不同时间呈现出不同的生活体验,从清晨舒适的咖啡到热闹的午餐,从精美的下午茶到晚上优雅的西餐,再到夜里的酒吧。
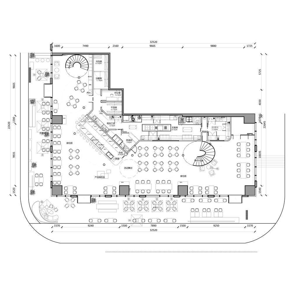
项目位于淮安市茂业大厦一楼后方转角处,5.6米高的室内做了挑空隔层,一楼规划厨房和公共用餐区,通过两座流线型的楼梯上到二楼包间和卡座区,室外有两面沿窗的外摆区。
设计师精心的采用了一块17米长的弧形造型结构,作为投影屏幕,并运用流水的视频内容将“水运之都”的概念再次强调,同时屏幕后方自然的形成了“双子”形式的私密空间。整案设计中的楼梯部分,借鉴了自然中的元素【流水、波纹、螺旋】赋予了“奢岛”自然的生命力。
空间中诸多优雅的弧面设计,在错落的空间中做错虚实的变化,营造出不同的分区,给消费者提供更多的空间选择。水墨渲染地面和顶部的灯光变换,结合结构和空间音乐,打造一个轻奢、深邃的就餐空间。在城市里,白天闹中取静,夜晚静中喧哗。
▲ 效果图
▲ 平面图
完整项目信息
项目名称:淮安奢岛
设计公司:孟萨空间设计(上海)有限公司
项目设计&完成年份:2019.4
主创设计:曹美丽
深化设计:屠雨薇
项目地址:江苏淮安
建筑面积:700㎡
摄影版权:孟萨空间设计
合作方/施工:维迈建筑
客户:奢岛
品牌/材料:多乐士、乳胶漆、木纹贴皮、韩国LG、砖、巴司克
【本案转载于LOFT中国】
深圳总部
深圳市龙岗区力嘉路2013文化创客园A栋A3-22
南山分部
深圳市南山区粤海街道滨海大道阳光金融大厦20楼
服务热线
13421805628
+
联系邮箱
项目合作498064812@qq.com 人事招聘aitoo_hr@126.com
+
艾图官方公众微信号 Steven先生的微信号

艾图品牌整合设计机构 2008-2018 All Rights Reserved.
Links:深圳品牌全案策划公司 | 商标设计 | 长沙VI设计公司 | 办公空间设计 | 品牌策划公司
酒店设计公司 | 深圳包装设计公司 | 品牌设计公司 | 店铺设计 | 重庆VI设计公司 | 三维动画制作 | VI设计公司