无论何时、何地、何种境地,
无形的引线都会将那些注定要相遇的人联系在一起。
这条线的形式多种多样,可以被拉伸,也可以缠成一团,但是它永远都不会断裂。
此次彼此交互的线条设计,设计灵感来源于红线。
▼一楼会客区
一楼的会客区顶部是两个红色的半球形,
圆形也传递着团圆、圆满。正面就是一个红线变形的前台造型,
抬头更是根根红线造型。抽象的“红线”以具象的形象存在,贯穿整个空间。
▼门厅,前台
在色彩搭配上,
我们根据公司团队的整体形象以及传递出的整体氛围,
我们大胆采用了红与灰的撞色,以未来感的室内造型构建空间的感官冲击。
▼楼梯细节
红色是激情和爆发,灰色是沉稳和内敛。
感性的血液在理性的围合中滋长,两种颜色也在对抗中达至平衡。
楼梯通体透红,富有张力。楼梯以红色钢板为主材,联系着一至三层。
▼二层员工办公区
二层为员工的主要办公区,简洁富有层次感。
另一方面,红色在我国文化中也代表了喜庆、美满,
此次设计也希望进入木兰婚礼的每一对新人,
感受到设计传递的一份喜悦与美好。
▼三层会客区
此处为三层的洽谈区,层层叠叠的造型构成丰富多变的空间。
▼门头
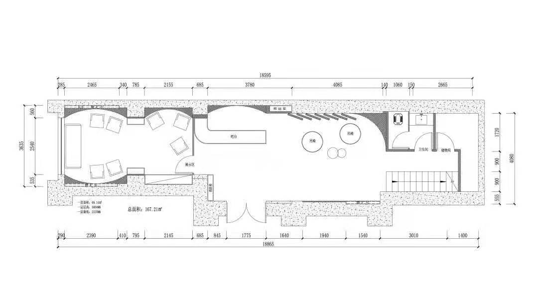
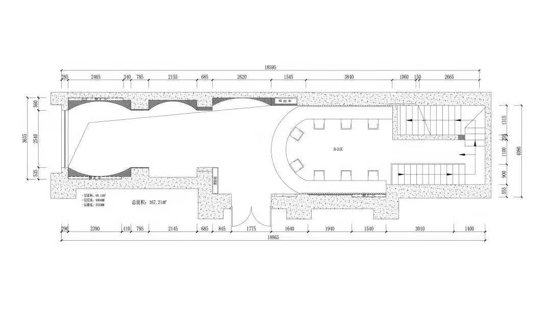
▼平面布局
【本文转载于头条设计】
★艾图是极富跨界整合、创新精神的VI设计公司、SI设计公司、专卖店设计公司、品牌设计公司、品牌连锁店设计公司。
深圳总部
深圳市龙岗区力嘉路2013文化创客园A栋A3-22
南山分部
深圳市南山区粤海街道滨海大道阳光金融大厦20楼
服务热线
13421805628
+
联系邮箱
项目合作498064812@qq.com 人事招聘aitoo_hr@126.com
+
艾图官方公众微信号 Steven先生的微信号

艾图品牌整合设计机构 2008-2018 All Rights Reserved.
Links:深圳品牌全案策划公司 | 商标设计 | 长沙VI设计公司 | 办公空间设计 | 品牌策划公司
酒店设计公司 | 深圳包装设计公司 | 品牌设计公司 | 店铺设计 | 重庆VI设计公司 | 三维动画制作 | VI设计公司