为了塑造出具有科技感的童趣世界,空间设计公司从门店整体造型出发引出创意构想。基地二楼四周的树荫透过幕墙投射进来的氛围,光影斑驳,有如浩瀚苍穹的璀璨星空。
身处都市,现在的青少年已经很少可以用眼睛去感受苍穹星光之间的五色斑斓,从这点入手,空间设计公司尝试在视觉上保证树林的光影感,北面沿街外立面用铝板渐变穿孔表皮,形成繁星的璀璨效果,这有如知识的广袤。
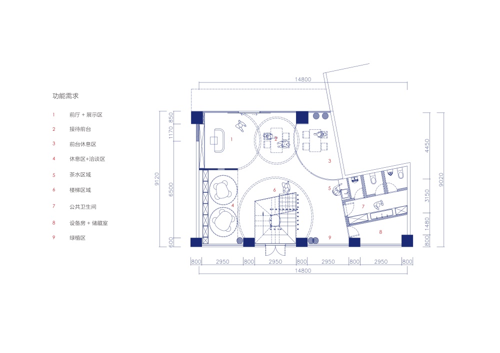
一层空间包含:接待/家长休闲区/楼梯/卫生间/储藏室。在相对局促的空间上,空间设计公司利用吊顶和地面的铺装上来隐形分割,立面空间上全部开敞。二层空间包含老师的办公区域/学生的各种类型教室。在办公室区域设计师采用折叠门来保证不同活动下的场景转换,各功能交接的区域我们植入小型景观,室内外相互视觉上衬托。
▲平面设计图
【本案转载于LOFT中国】
深圳总部
深圳市龙岗区力嘉路2013文化创客园A栋A3-22
南山分部
深圳市南山区粤海街道滨海大道阳光金融大厦20楼
服务热线
13421805628
+
联系邮箱
项目合作498064812@qq.com 人事招聘aitoo_hr@126.com
+
艾图官方公众微信号 Steven先生的微信号

艾图品牌整合设计机构 2008-2018 All Rights Reserved.
Links:深圳品牌全案策划公司 | 商标设计 | 长沙VI设计公司 | 办公空间设计 | 品牌策划公司
酒店设计公司 | 深圳包装设计公司 | 品牌设计公司 | 店铺设计 | 重庆VI设计公司 | 三维动画制作 | VI设计公司