该项目位于深圳蛇口的海上艺术中心,这座优美的白色建筑出自日本建筑大师桢文彦之手。项目拥有长达24米的建筑幕墙立面,设计风格如何与建筑本身融洽又不失特色,成了每个空间设计公司最关心的问题。
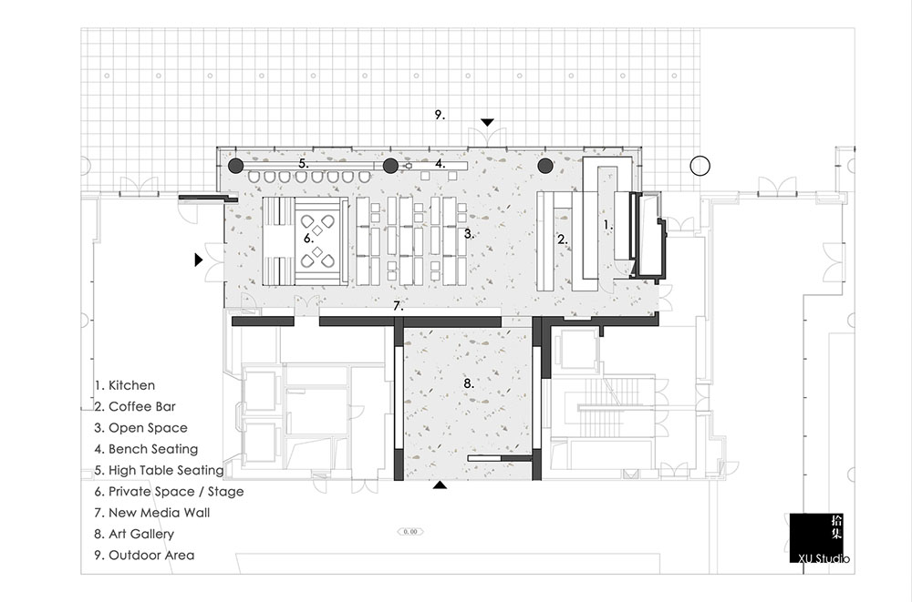
项目平面呈凸字形排布,空间设计公司选择沿户外靠近海岸的长条空间作为咖啡及知识分享区,凸出的方形作为艺术空间,链接海上艺术中心中庭。顾客由建筑中庭进入纯白的艺术空间,户外自然光透过高而窄的弧形门洞指引顾客前往探索,挑高6米的全落地窗大空间跃然眼前。
区别于传统咖啡店的听觉体验,在此我们能感受到视觉听觉的双重冲击。时而磅礴时而细密的海浪声,来自于空中悬挂的艺术家作品“海浪”,这是一件通过采集世界各个海域海浪声以钢珠晃动碰撞呈现的新媒体艺术装置,侧墙面则有大型LED屏幕同步播放海域音响。
空中悬浮着10个巨大发光圆盘,灵感来自于设计师儿时的记忆。坐在窗边看雨水打在水塘中泛起的层层涟漪,因时间的推移呈现出大小不一的圆圈,意图抓住这个瞬间与大家分享。
抬高的区域以竖纹玻璃与金属网围合形成半私密空间,当场地转化为知识沙龙时,金属框架落下投影幕,抬高区域成为专家们的讲台。
开放式的大空间与可移动拼接的家具为运营业态带来无限可能性,咖啡餐饮、讲座沙龙、艺术展览、沉浸式戏剧表演都能一一满足。
空间与业态的随时可变、设计呈现的因地制宜是補時作为“反连锁的连锁”的重要性能,空间设计公司在補時上海第一家店便充分考虑了空间的灵活性,并因现场条件及定位需求采用不同的设计语言和手法表现。设计师在補時上海常德路店,强调地下空间质朴粗矿的混凝土墙面与现代高亮反光材质的冲撞对比,引入发光膜打破地下室给人固有的阴暗沉闷感。
▼ 轴测图
▼ 平面图
【本案转载于 LOFT中国 案例来自拾集建筑。】
深圳总部
深圳市龙岗区力嘉路2013文化创客园A栋A3-22
南山分部
深圳市南山区粤海街道滨海大道阳光金融大厦20楼
服务热线
13421805628
+
联系邮箱
项目合作498064812@qq.com 人事招聘aitoo_hr@126.com
+
艾图官方公众微信号 Steven先生的微信号

艾图品牌整合设计机构 2008-2018 All Rights Reserved.
Links:深圳品牌全案策划公司 | 商标设计 | 长沙VI设计公司 | 办公空间设计 | 品牌策划公司
酒店设计公司 | 深圳包装设计公司 | 品牌设计公司 | 店铺设计 | 重庆VI设计公司 | 三维动画制作 | VI设计公司